, , , , , , , , ,
apriUnTicket Apri un ticket
  Login
Home Newsoft
Menu
  • Software
    • Edisis

      software calcolo, progettazione e verifica strutture in c.a.

       
    • Por 2000

      progetto, analisi e verifica sismica edifici in muratura nuovi ed esistenti

       
    • Solaio

      progetto e calcolo di solai prefabbricati e in latero-cemento e misti

       
    • Ediplin

      calcolo, progetto e verifica di plinti su pali in cemento armato

       
    • Truss

      calcolo, analisi e progetto di strutture reticolari

       
    • Aspen

      analisi di stabilità e consolidamento di pendii con presenza di rinforzi

       
    • Hydronet

      analisi e verifica di reti ed impianti idraulici

       
    • Moduli SismiCa

      Utility per la compilazione di depositi secondo le Procedure Regione Calabria Sismi.Ca

       
    • Moduli RsAbruzzo

      Utility per la compilazione di depositi secondo le Procedure Regione Abruzzo

       
  • Servizi
  • Supporto
  • Shareware
  • Shop
  • Azienda
  • Notizie
  • Casi Studio
 
Home > Casi Studio > Progetto
 
ICO

Casi di studio

I progetti e gli interventi dei nostri clienti e dei nostri tecnici

 
  • Casi Studio
  • Edificio residenziale – Montorio (TE)
  • Condominio Buratti – Comunanza (AP)
  • Asilo Nido Le Stagioni Marzi (CS)
  • Sant’Anastasia (NA)
  • Ex mercato coperto a Sala Consilina (SA)
  • Scuola Elementare Montescaglioso (MT)
  • Scuola Primaria – Serra D'Aiello (CS)
  • Serbatoio Circolare in c.a.
  • Palacio de Villaescusa – Lorca – Spagna
  • Manresa – Spagna
  • Chiesa S. Maria del Colle – Mormanno (CS)
  • Casa Novi – Modena (MO)
  • Chiesa S. Maria Maddalena – Morano Calabro (CS)
  • Ricostruzione Fabbricato – Abruzzo
  • Aggregato Edilizio in Muratura – Abruzzo
  • Complesso per Edilizia Residenziale – Rossano (CS)
  • Complesso commerciale – Spezzano Albanese (CS)
  • Complesso Aurora – Comparto Ordona Sud – (FG)
  • Scuola Media Statale G. Parini – Putignano (BA)
  • Palazzo Municipale – Putignano (BA)
  • Complesso La Fornace – Cosenza (CS)

Valutazione del danno e della capacità portante. Progetto di intervento di miglioramento sismico chiesa a Morano Calabro (CS)

Chiesa S. Maria Maddalena – Morano Calabro (CS)

/Uploads/CasiStudio/ChiesaMorano/1.png
/Uploads/CasiStudio/ChiesaMorano/2.png
/Uploads/CasiStudio/ChiesaMorano/3.jpg
/Uploads/CasiStudio/ChiesaMorano/4.png
/Uploads/CasiStudio/ChiesaMorano/5.png
/Uploads/CasiStudio/ChiesaMorano/6.png
/Uploads/CasiStudio/ChiesaMorano/7.png
/Uploads/CasiStudio/ChiesaMorano/8.png
/Uploads/CasiStudio/ChiesaMorano/9.png
/Uploads/CasiStudio/ChiesaMorano/10.png
Arch. Leto Gaetano - Arch. Sabrina Mainieri Edificio storico - originale risalente all’ XI secolo e ricostruito nel XVI secolo, Viale Gaetano Scorza, Morano Calabro (CS) - Italia POR 2000
Miglioramento sismico L'edificio di culto ha una superficie di circa 750 mq, altezza massima al colmo di 18 m. 200.000 €
 

Macro descrizione del progetto/struttura

L'antico nucleo dell’edificio in oggetto sorgeva nel 1097 come piccola cappella suburbana. Di origine bizantina, nella prima metà del 1500 stava quasi per crollare; fu quindi riedificata e ampliata in pianta a croce latina a tre navate per volere del parroco Don Giuseppe La Pilossela; venne poi consacrata nel 1569. Successivamente fu aggiunto un largo presbiterio ed un coro spazioso.

Nel corso dei lavori di restauro del 1732, le decorazioni tardo barocche, commissionate a Donato Sarnicola, conferirono all’interno un aspetto maestoso, tanto da poter considerare detta chiesa una delle più chiare espressioni di architettura barocca in Calabria. 

La facciata, di stile neoclassico, è stata completata nel 1844 dal Preposto Gaetano Scorza. Nella parte inferiore di essa contiamo sei colonne di ordine corinzio; nella parte superiore quattro colonne di stile ionico in corrispondenza delle colonne della parte inferiore. Un fregio ornamentale, ripetuto nel timpano, interrompe in modo armonioso questa corrispondenza tra le colonne.

La facciata si presenta simmetrica con portali e finestre disposte sulla stessa linea verticale ed è preceduta da un sagrato di forma rettangolare cinto da colonnine a cui si accede attraverso un'ampia scalinata in pietra.

La chiesa è formata da tre navate disposte con ordine e simmetria mirabili. Entrando osserviamo colonne e capitelli di ordine composito, ornati, modanature e stucchi che concorrono a far brillare l'edificio. Vi sono 14 altari quasi tutti in marmo. La navata centrale ha una volta a botte su cui si affacciano dieci finestre incorniciate da lunette. Nelle navate laterali si trovano cinque cappelle per lato, divise in campate sormontate da piccole cupole. 

Nella crociera lato Evangelio è situata in una nicchia la statua della Candelora, in marmo, (alta 1,60), mentre nella crociera lato Epistola una nicchia accoglie la statua in marmo della Madonna degli Angeli di Antonello Gagini, vissuto dal 1478 e il 1536. Sulla pedrella di questo altare c’è una teca dove è conservata l'orma, impressa sulla roccia, di un piede di San Francesco di Paola. 

La chiesa possiede molte altre opere tra cui: 

-un pulpito di A. Fusco;

-l'organo a canne, fregiato di ornati di legno dorato fatto costruire nel 1763 dal canonico P. Carlo Lo Tufo e fatto restaurare nel 1891 dal preposto Vincenzo Salvati.

- il coro ligneo di A. Fusco: tre ordini di sedili in legno di noce con intagli e ornati di bassorilievi. 

Nell'abside, in alto, il fastigio del coro è sovrastato da un imponente gruppo marmoreo, racchiuso in nicchie di stile neoclassico che si discosta dal disegno architettonico dell’intera chiesa.

Nella nicchia centrale è collocata Santa Maria Maddalena in marmo bianco a tutto tondo (altezza 1,80 m); a destra la statua di Sant'Agostino, a sinistra quella di Santa Monica, alte 1,16 m e provenienti dal Convento degli Agostiniani di Colloreto. 

Inserito in modo armonioso tra i pregevoli stucchi dell’abside e degli altri capolavori, l’altare maggiore, alletta l’occhio per la ricchezza di colori, delle sfumature del marmo, per la perfetta simmetria dei riquadri che si alternano e si rincorrono.

Esso è ornato alla sommità dei due lati da Angeli oranti, figure inginocchiate e mani congiunte in preghiera (h0,61m), opere in marmo bianco di un allievo sconosciuto appartenente alla bottega del Bernini. Il presbiterio è cinto da una balaustra di marmo di vari colori; gli sovrasta una grande e maestosa cupola. Interessante è la sagrestia con soffitto a cassettoni di manifattura locale di epoca tardo cinquecentesca; in essa sono riuniti altri quadri di pregio.

Attiguo alla chiesa si innalza il campanile, risalente al 1817, sormontato dalla cupola del 1794 che ripercorre modelli barocchi. Il campanile e la cupola furono rivestiti nel 1862 di caratteristiche maioliche in stile campano di colore giallo e verde.

Modellazione e progetto

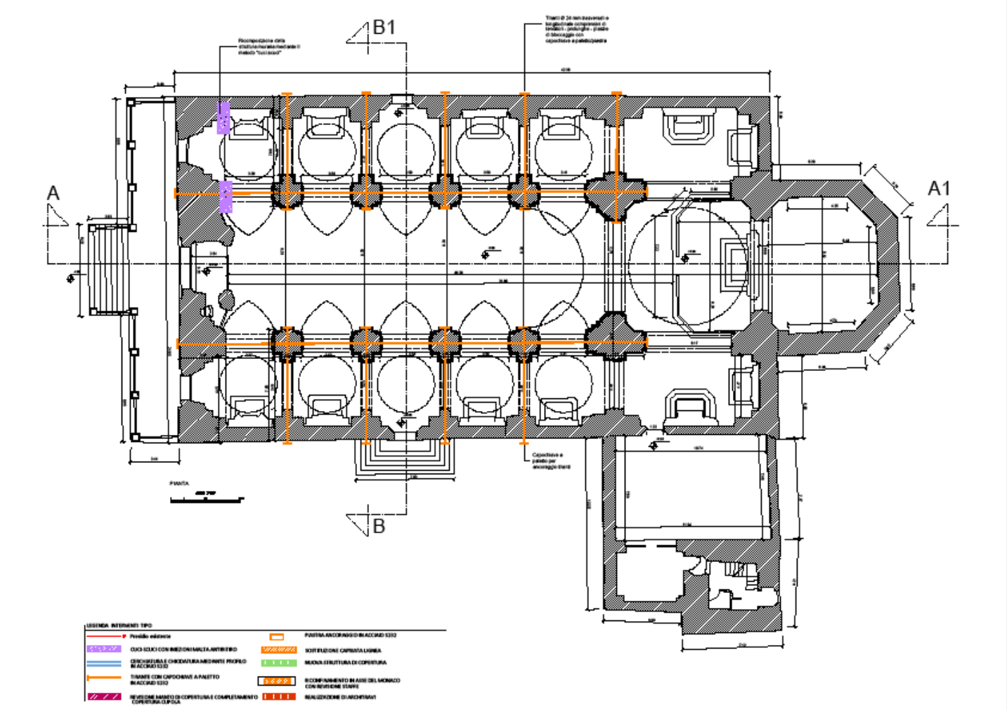
I principali aspetti cui si è dato attenzione nella fase di studio, modellazione e progettazione per la particolare struttura sono stati:

 

  • Studio del terreno mediante indagine geofisica con la tecnica dei rapporti spettrali (HVSR) per determinare la stratigrafia del sottosuolo e la velocità media di propagazione delle onde di taglio (Vs30) utile per la determinazione della categoria del suolo di fondazione;
  • Saggi per la definizione delle pareti, qualità della tessitura muraria, qualità della malta, presenza di diatoni;
  • Valutazioni di possibili meccanismi fuori piano per le singole pareti e per piccoli gruppi di pareti;
  • Valutazione di efficaci tiranti di piano con studio dettagliato del capochiave , rispettando il contesto architettonico di pregio della facciata e il vincolo della soprintendenza dei beni culturali ;
  • semplicità di modellazione, vista la complessa struttura, e valutazione della sicurezza variando le caratteristiche dei materiali, l’eventuale presenza di cordoli e la loro efficacia di vincolo.
 
 
 
Vuoi pubblicare i tuoi lavori?
progetti

mandaci il tuo progetto

il nostro staff li aggiungerà alla galleria dei professionisti che utilizzano i nostri software

INVIA
 
 
 
Newsoft - firma
Copyright © 2015-2026 Newsoft s.a.s - Tutti i diritti riservati

Software


Edisis
Ediplin
Aspen
Por 2000
Solaio
Truss
Hydronet
Moduli SismiCa
Moduli RsAbr

Menu


Servizi
Shop
Supporto
Shareware
Azienda
Notizie
Link Utili
Manuali online
Privacy

Servizi


Acquisti a Tasso Zero
Noleggia i software
Richiedi Preventivo
Licenza Academy
Carta del Docente
Offerta Rottamazione
Offerta Neolaureati
Comunica pagamento
Acquisti Mepa
QRCode PIVA

Supporto


Guida installazione
Richiedi assistenza
Assistenza in Remoto
Leggi le FAQ
Video
Articoli Tecnici
Approfondimenti
Brochure
Archivio News
Iscriviti alla newsletter